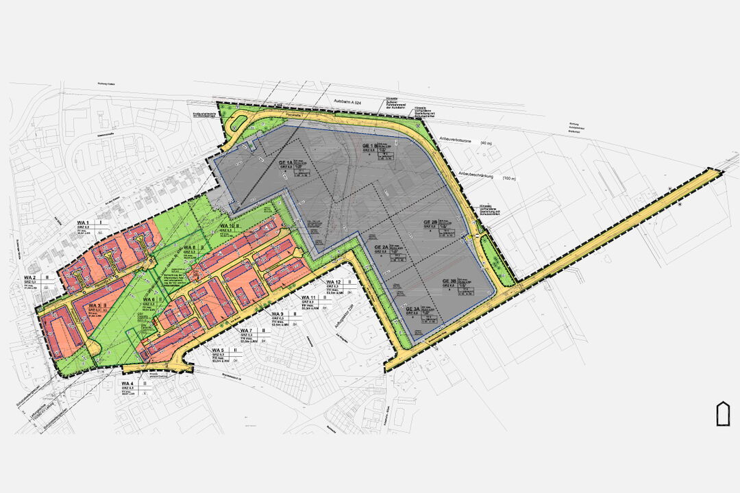
Ehem. Volkswagen Vertriebszentrum Ratingen

  • Bauvorhaben: Revitalisierung des ehem. Vertriebszentrums │ Grundstück 250.000 qm
  • Bauherrin: Gottfried Schultz GmbH [&] Co. KG, Ratingen
  • Leistungen: Projektsteuerung für die Baurechtsschaffung, sowie für die Rückbau- und Erschließungsmaßnahmen. Vermarktung der Gewerbe- und Wohnbauflächen

Zurück zur Newsübersicht